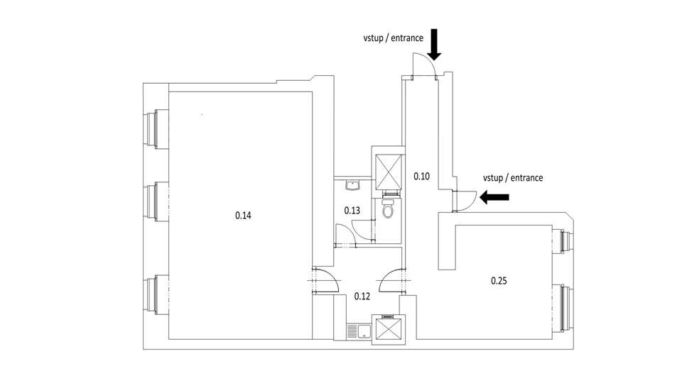
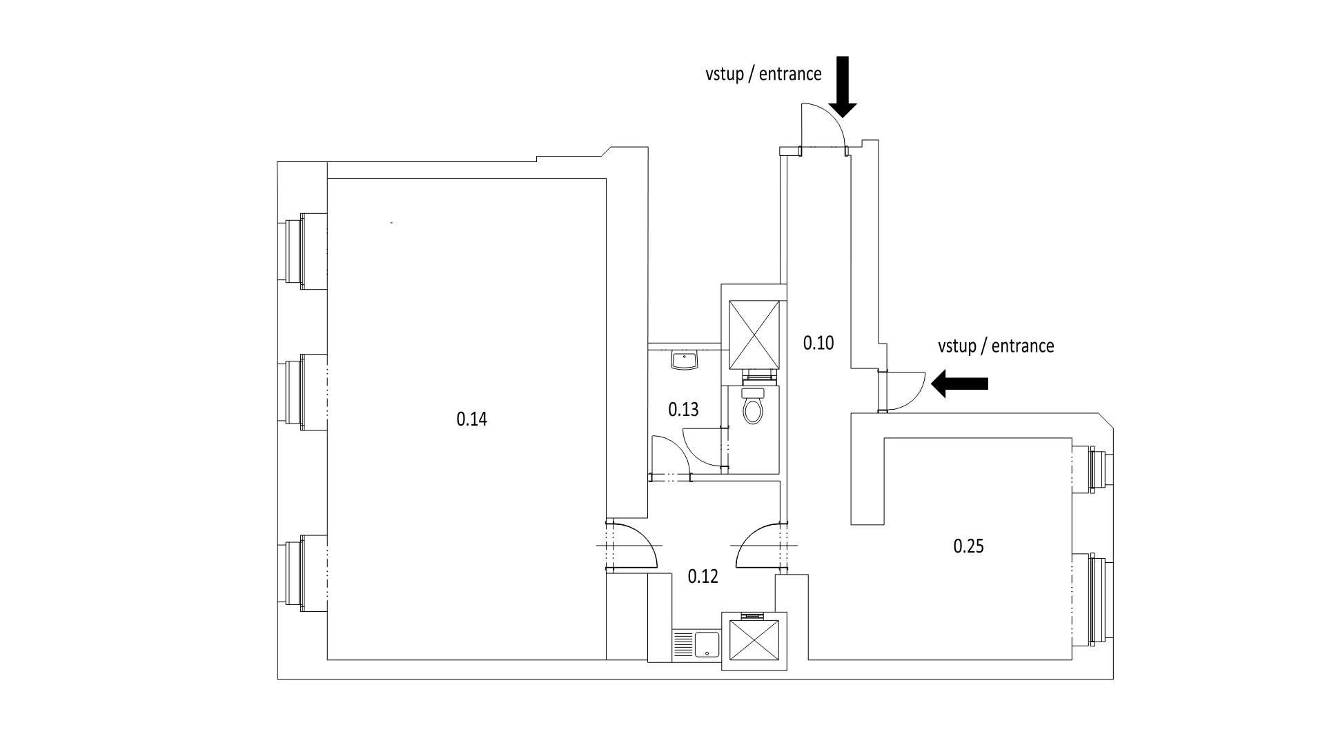
Nebytový prostor 0.2